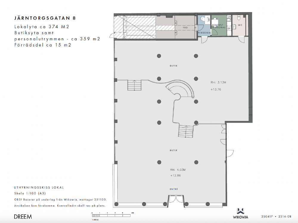
Butik - Järntorgsgatan 8
Lokalen består idag av butiksyta, ett mindre lager och personalyta med wc och pentry. Butiken har stora generösa skyltfönster mot Järntorgsgatan och Pusterviksgatan.
- Yta
- 374 kvm
- Typ
- Butik
- Adress
- Järntorgsgatan 8
Planlösning
Omgivning
Lokalen ligger på Järntorgsgatan längsmed gångstråket mellan Järntorget och Kungsgatan. I området finns det flera butiker, restauranger och hotell Draken som närmsta granne.
Kommunikationer
Bra läge precis vid knutpunkten Järntorget.



