Kontor 381 kvm - Kontrabasgatan 7
Kontor i bra läge med närhet till Västerleden.
- Yta
- 381 kvm
- Typ
- Kontor
- Adress
- Kontrabasgatan 7
- Tillgänglig
- 2026-03-01
Omgivning
Lokalen ligger ca 800 meter från Frölunda Torg med ett stort utbud av affärer och matställen.
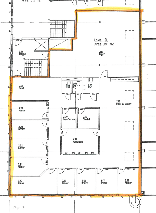
Planlösning
Lokalen består av ca 10-15 kontorsplatser, två konferensrum, pentry och pausrum samt en större öppen yta för lager eller projektyta.
Önskas mer kontor och lager så finns det ytterliggare yta om 336 kvm i angränsande lokal tillgängligt.
Kommunikationer
Busshållplats finns i anknytning till fastigheten.
Service
Parkering och garage finns på fastigheten i anslutning till lokalen. Möjlighet till elbilsladdning.



