Kombilokal - Kontrabasgatan 7
Yta: 336 kvm
Typ: Lager/kontor
Adress: Kontrabasgatan 7
Tillgänglig: 2026-03-01
Kombilokal med lager och kontor.
Omgivning
Lokalen ligger ca 800 meter från Frölunda Torg med ett stort utbud av affärer och matställen.
Planlösning
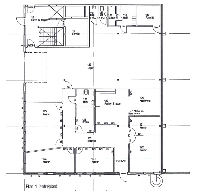
Kombilokal med lager och kontor. Lokalen består av ca 6-8 kontorsplatser, konferensrum, pentry, kundentré/butik, omklädningsrum och lager med port. Porten är ca 3 meter hög och 4 meter bred. Takhöjd i lagret ca 3 meter.
Önskas mer kontor så finns det ytterliggare yta om 381 kvm i angränsande lokal.
Kommunikationer
Busshållplats finns i anknytning till fastigheten.
Service
Parkering och garage finns på fastigheten i anslutning till lokalen. Möjlighet till elbilsladdning.
